Sprawdź nasze gotowe garaże betonowe
Producent garaży betonowych – firma AG-BET ma przyjemność zaprezentować Państwu produkowane przez naszą firmę monolityczne garaże betowe (garaże gotowe).
Stosowana przez nas technologia produkcji pozwala na dostosowanie wymiarów zewnętrznych garaży do Państwa potrzeb i wymagań. Garaże betonowe mogą posiadać następujące wymiary:
- długość: 3000 – 6000 mm,
- szerokość: 2990 mm,
- wysokość: 2540 mm.
Zapewniamy również możliwość wykonania dachu garażu ze spadem na przód i tył co pozwala na efektywne odprowadzanie wody. Produkcja naszych garaży betonowych oparta jest na nowoczesnej technologii wytwarzania formy. Czterościenny moduł wytwarzania formy (dach i trzy ściany) pozwala na wmontowanie w konstrukcję nośną podłogi. Garaż wykonany jest z wysokiej klasy betonu C30/37 zbrojonego podwójną siatką.
Dach pokryty jest wysokiej jakości materiałami termoizolacyjnymi. Dzięki zastosowaniu nowoczesnych materiałów oraz technologii możemy zapewnić trwałość konstrukcji i wieloletnie użytkowanie.
Szersze garażę monolityczne
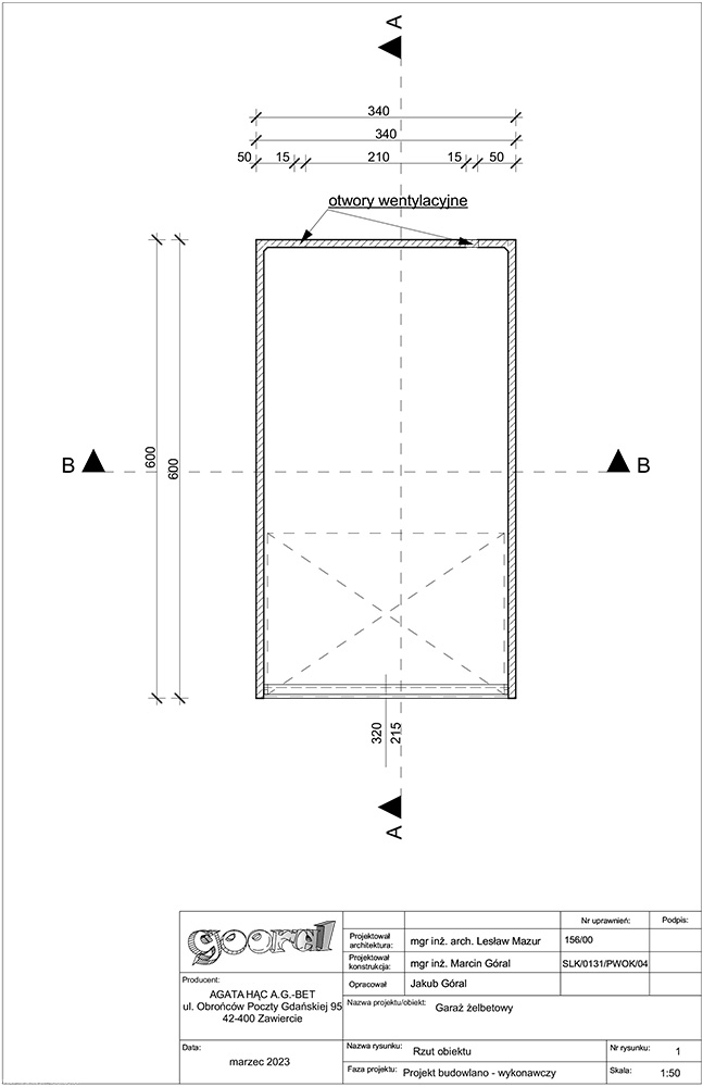
Nowość – boks żelbetowy niestandardowy wykonany jako monolit w wersji bez płyty podłogowej:
- Wymiary zewnętrzne: dł. 6 m, szer. 3,40 m, wys. 2,55 m,
- Grubość ścianki: 11-12 cm,
- Grubość stropu: 12 cm,
- Wymiary otworu pod bramę: wys. 2,30 m, szer. 3,18 m,
- Ciężar: 17 ton.
Boks żelbetowy jest wykonywany na takich samych zasadach i z takich samych surowców i materiałów jak garaże standardowe.
Oferowane wersje garaży betonowych:

Wersja podstawowa – garaż betonowy, stan surowowy bez płyty podłogowej 
Wersja podstawowa – garaż betonowy, pojedynczy, całkowicie wykończony 
Wersja podstawowa – garaż betonowy, pojedynczy, całkowicie wykończony 
Szeregowe garaże żelbetowe 
Szeregowe garaże żelbetowe 
Wersja podstawowa 
Szeregowe garaże żelbetowe 
Szeregowe garaże żelbetowe 
Przejście pomiędzy garażami 
Szeregowe garaże żelbetowe 
Monolityczne garaże betowe 
Szeregowe garaże żelbetowe 
Wysokiej jakości detale 
Szeregowe garaże żelbetowe 
Dach pokryty jest wysokiej jakości materiałami termoizolacyjnymi








